Explain / 特徴

”こもれる場所”がある家。

恵美酒第5マンション、5階。
令和3年フルリノベーション済みの一室に、空きが出ました。

バルコニー横に設けられた書斎スペースは、
この住まいならではの魅力。
本に囲まれるワークスペースとしても、
お子様のお部屋としても使える、ちょっと特別な空間です。

リビングは天井をあえて見せたモルタル仕上げで、
無骨さと抜け感が心地いい雰囲気に。

亀山駅まで徒歩8分の便利な立地も魅力。
日常の中に、自分らしく過ごせる
”こもり場所”を。

そんな暮らし、始めてみませんか?

About / 概要

物件価格:
1,450万円

マンション

マンション名
第5恵美酒マンション
所在地
姫路市飾磨区恵美酒
構造
鉄筋コンクリート造
専有面積
90.50㎡
管理費
4,000円/月
修繕費
7,000円/月
築年数
昭和59年10月
間取り
2LDK+書斎
駐車場
有(3,000/月)

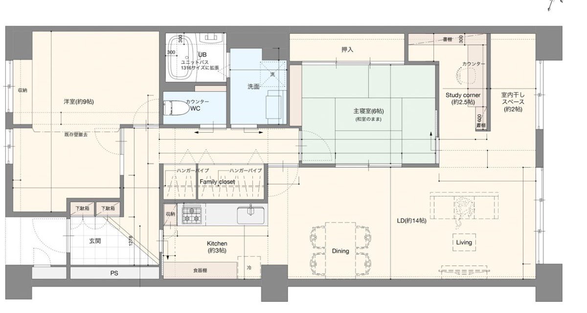
Layout / 間取り図

×

Access / 周辺情報

交通
山電「亀山」駅徒歩8分
周辺施設

□姫路恵美酒郵便局 徒歩約2分

□セブンイレブン姫路飾磨中野田店 徒歩約6分

□マルアイ亀山店 徒歩約10分

□姫路信用金庫野田支店 徒歩約7分


学校区
飾磨小学校 中部中学校

Contact / お問い合わせ

こちらの物件へのお問い合わせは
下記のフォームより承っております。
必要項目を入力の上、送信ボタンを押してください。

    氏名*

    電話番号*

    メールアドレス*

    お問い合わせ内容*

    物件を探すsearch

    HIMEJI[D-Ho.]
    姫路/戸建て
    HIMEJI[Apt.]
    姫路/マンション
    KAKOGAWA
    加古川
    TATSUNO/TAISHI
    たつの・太子町
    TAKASAGO
    高砂
    OTHERS
    他エリア

    RENOVATED

    リノベーション済み物件

    with shop

    店舗付き物件