No.473

青空と暮らす。飾磨区高町のフルリノベ住宅。

Explain / 特徴

青空と暮らす。飾磨区高町のフルリノベ住宅。

物件の裏側には、ゆるやかに流れる川。
前面道路も広く、視界が抜けていて、
とにかく解放感がある立地です。

そんな場所に、
フルリノベーションを終えたばかりの一邸が完成しました。

外観は、青空によく映えるシックなグレーカラー。
室内もトーンを抑えた落ち着きのある空間で、
収納もしっかり確保。駐車場は2台分。

ここ良い!
きっと見に行った人は、
「あ、これ好きかも」って思ってしまうはず。

青空と相性抜群のこのお家で
新しい暮らし、はじめてみませんか?

About / 概要

物件価格:
3,480万円

戸建て

所在地
姫路市飾磨区高町
構造
木造2階建て
土地面積
153.27㎡
建物面積
136.93㎡
築年数
平成9年10月
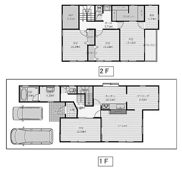
間取り
5SLDK+WIC
駐車場
2台可能

Layout / 間取り図

×

Access / 周辺情報

交通
JR「英賀保」駅徒歩13分
周辺施設

□マックスバリュ英賀保店 約800m

□マルアイ英賀保店 約800m

□ローソン飾磨今在家点 約290m

□エーコープ玉手店 約580m


学校区
英賀保小学校 飾磨西中学校

Contact / お問い合わせ

こちらの物件へのお問い合わせは
下記のフォームより承っております。
必要項目を入力の上、送信ボタンを押してください。

    氏名*

    電話番号*

    メールアドレス*

    お問い合わせ内容*

    物件を探すsearch

    HIMEJI[D-Ho.]
    姫路/戸建て
    HIMEJI[Apt.]
    姫路/マンション
    KAKOGAWA
    加古川
    TATSUNO/TAISHI
    たつの・太子町
    TAKASAGO
    高砂
    OTHERS
    他エリア

    RENOVATED

    リノベーション済み物件

    with shop

    店舗付き物件