Explain / 特徴

ひだまりタウンで育つ家。

平岡町高畑。
静かに整った街並みに佇む、築4年の築浅物件。

太陽の恵みを暮らしに活かす、
eソラシード搭載の太陽光発電。
オール電化住宅で、エネルギーも安心。

ナチュラルカラーでまとめられた3LDKは、
やさしい木のぬくもりが似合う空間。

前面道路は広々と、子供たちが駆け回る姿が目に浮かぶ。
裏には畑が広がり、季節の風邪が通り抜ける 
開放的なロケーション。

自然と笑顔が増えるそんな
「ひだまり暮らし」がここにあります。

About / 概要

物件価格:
2,880万円

戸建て

所在地
加古川市平岡町高畑
構造
木造瓦葺2階建て
土地面積
126.37㎡
建物面積
78.24㎡
築年数
令和4年1月
間取り
3LDK
駐車場
2台可能

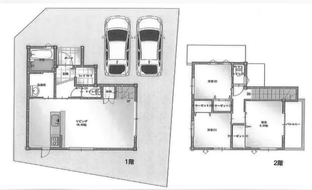
Layout / 間取り図

×

Access / 周辺情報

交通
JR東加古川駅 徒歩約23分
周辺施設

□マックスバリュ東加古川店 徒歩約11分

□セブンイレブン加古川平岡辻ヶ内店 徒歩約10分

□JA加古川南平岡支所 徒歩約18分

□加古川二俣郵便局 徒歩約22分


学校区
平岡小学校 平岡中学校

Contact / お問い合わせ

こちらの物件へのお問い合わせは
下記のフォームより承っております。
必要項目を入力の上、送信ボタンを押してください。

    氏名*

    電話番号*

    メールアドレス*

    お問い合わせ内容*

    物件を探すsearch

    HIMEJI[D-Ho.]
    姫路/戸建て
    HIMEJI[Apt.]
    姫路/マンション
    KAKOGAWA
    加古川
    TATSUNO/TAISHI
    たつの・太子町
    TAKASAGO
    高砂
    OTHERS
    他エリア

    RENOVATED

    リノベーション済み物件

    with shop

    店舗付き物件