No.453

空と暮らす、光あふれる多機能ハウス

Explain / 特徴

空と暮らす、光あふれる多機能ハウス

閑静な住宅街に佇む、ゆとりの7LDK。
326㎡の広い敷地には、屋上バルコニー・倉庫・事務所スペースを備え
「暮らす」「働く」「楽しむ」を一つにできる多機能な住まいのご紹介です。

玄関を開けると吹き抜けからやさしい光が差し込み、
南向きのリビングは一日を通してあたたかな陽ざしに包まれます。


部屋数も多く、二世帯や在宅ワーク、
趣味の空間としても柔軟に対応してくれます。

屋上では季節の風を感じながら、
家族や友人と過ごす時間を作れます!


駐車スペースも2台分あり、来客時も安心。


静けさと利便性のバランスが取れたこの場所で、
“空のある暮らし”を楽しんでみませんか?

About / 概要

物件価格:
2,280万円

戸建て

所在地
高砂市北浜町牛谷
構造
木造ストレート
土地面積
363.13㎡
建物面積
196.95㎡
築年数
平成3年7月
間取り
7LDK
駐車場

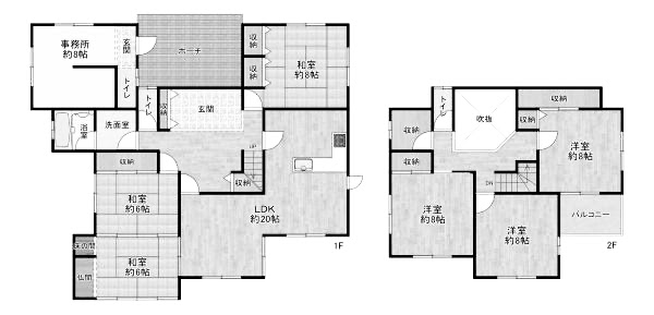
Layout / 間取り図

×

Access / 周辺情報

交通
JR「曽根」駅 徒歩18分
周辺施設

マルアイ大塩店(1902m)

セブンイレブン高砂北浜町店(1411m)

姫路別所郵便局(1793m)

JA兵庫西大的支店(1978m)


学校区
北浜小学校 鹿島中学校

Contact / お問い合わせ

こちらの物件へのお問い合わせは
下記のフォームより承っております。
必要項目を入力の上、送信ボタンを押してください。

    氏名*

    電話番号*

    メールアドレス*

    お問い合わせ内容*

    物件を探すsearch

    HIMEJI[D-Ho.]
    姫路/戸建て
    HIMEJI[Apt.]
    姫路/マンション
    KAKOGAWA
    加古川
    TATSUNO/TAISHI
    たつの・太子町
    TAKASAGO
    高砂
    OTHERS
    他エリア

    RENOVATED

    リノベーション済み物件

    with shop

    店舗付き物件